1949年9月的北京,秋意已浓。距新中国成立只剩下几天,长安街上车马往来,天安门前却还留着一片空阔的广场。很少有人想到,这片尚未完全规划好的地方,很快就要矗立起一座将被写进共和国记忆的纪念碑,而这项工程的起点,竟是一场在会场中临时作出的提议和一次夜色里的匆忙奠基。
有意思的是,在新中国众多标志性建筑中,毛泽东一生只亲自为一座建筑铲过那象征开始的“第一锹土”,那就是天安门广场中央的人民英雄纪念碑。这也让纪念碑的诞生过程,多了几分庄重意味。
一切的源头,要从1949年9月30日下午的那次会议说起。
一、“要立一座碑”:从决议到夜色中的奠基
1949年9月30日,中国人民政治协商会议第一届全体会议正在北京勤政殿紧张进行。那天走进会场的代表们,会发现桌上多了一份特殊的文件——关于在首都建立“人民英雄纪念碑”的决议草案。
这项提议并非突发奇想。早在解放战争后期,党内一些同志就提出,应该在首都为为国捐躯的英雄树立象征性的纪念建筑。到北平解放之后,这个想法开始变得具体起来。新中国即将成立,如何以一种庄严的方式告慰烈士,已成为摆在中央领导人面前的一道现实课题。
草案在会上提交时,代表们心里都有数。战争刚刚结束,人们身边几乎人人都有牺牲的亲友、战友,对“人民英雄”这四个字,每个人都不陌生。决议很快获得全票通过,会场里响起长时间的掌声。

就在工作人员忙着清点选票时,周恩来站起身,提出了一个颇为“赶时间”的建议:趁着会议间隙,当天就举行纪念碑的奠基典礼。很多代表一听,心头一震:原来这件事不是遥遥无期的规划,而是要立刻动起来的现实工程。
傍晚时分,夜色刚刚笼罩天安门城楼。毛泽东、周恩来、朱德、刘少奇、宋庆龄等中央领导,与政协会代表和各界群众代表共三千多人,一同来到天安门广场。广场上此时还很空阔,没有今天这样完整的格局。
在《义勇军进行曲》的乐声中,林伯渠宣布奠基典礼开始。周恩来代表会议主席团致辞,提到“纪念死者,鼓舞生者”这一建碑宗旨。随后,全体代表脱帽默哀。
在众人注视下,毛泽东走到奠基石前,亲手握起铁锹,铲下了象征开工的第一锹土。紧接着,周恩来、朱德以及各界代表依次铲土。这简短的一套动作,常常被后来的回忆形容为“共和国的第一锹土”。对毛泽东而言,这也是他一生唯一一次为建筑举行的奠基仪式。
需要说明的是,那天晚上奠基的点位,比今天纪念碑所在位置略偏北,更接近天安门一些。也就是说,后来大家在广场上看到的纪念碑,是在这块奠基石基础上,又经过一番思量和调整后的最终成果。
二、“位置定下了吗”:周恩来反复斟酌的选址
要立碑,问题先从“立在哪”开始。

建国前后,关于纪念碑选址,党内外一度有好几种方案。围绕这块碑,应当放在哪块土地上,更能匹配它的意义,各方讨论十分热烈。
一种意见,主张建在东单广场。那里是北京重要交通节点,人流密集,便于群众瞻仰;另一种意见,则提出安放在八宝山,因为那里安葬了许多革命烈士,与“纪念”二字最为贴近;还有一种声音认为,纪念碑应当与天安门联系起来,立在天安门广场或其轴线附近,以突出国家象征与革命传统的延续。
甚至有人提出,将天安门后面的端门城楼拆除,把纪念碑建在端门城台上,让整个中轴线显得更为“现代”。这一想法一提出来,立刻引发争议。毛泽东听到后,态度很明确,他认为把一座全新的现代纪念碑堵在古老城楼后面,会破坏古建筑群的整体风貌,也不符合首都中轴线的历史格局。
虽然具体工作由北京市建设部门牵头负责,但周恩来心里一直牵挂这件事。组织开国大典的各项事务已够繁忙,他还是专门抽时间多次登上天安门城楼,从高处俯瞰这片广场,来回比较各种可能的点位。
临近9月30日时,选址迟迟没有最后拍板。周恩来忍不住当面催问时任北京市建设局副局长赵鹏飞:“位置定下了吗?毛主席就要带政协代表来奠基了。”这句问话,后来一再被人提起,可见他当时的焦虑。
建设局方面做了汇报:综合城市布局、历史传统和政治象征,倾向把纪念碑放在天安门广场中轴线上。周恩来在政协会上对此给出解释:“这里是五四运动以来革命运动的重要发源地,又位于首都中心,为全国人民所向往,也为世界人民所瞩目。”
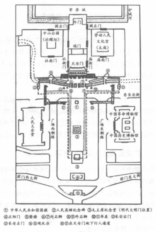
确定大致范围后,还有更细致的方案。摆在桌面上的,有三个主要考虑点:一是东绒线胡同与中轴线的交会处附近;二是靠近中华门与正阳门之间的位置;三是偏向国旗杆南侧的区域。每挪几十米,整个空间比例和视觉重心都会不同。
周恩来把原先登楼时的观察与这三种方案一一对照,对天安门与正阳门的相对关系反复权衡。经过慎重思量,他提出一个折中又讲究的方案:纪念碑建在天安门与正阳门之间的中轴线上,使纪念碑与两座城楼的距离大致相等。

从后来的实际效果来看,这个决定非常关键。纪念碑不仅与天安门、人民大会堂、中国革命历史博物馆(今国家博物馆)构成完整格局,还给此后广场扩建、国旗台设置以及毛泽东纪念堂的建设留下充足的空间。天安门广场今日的整体气象,多少可以说,是从当年这道选址方案里铺陈出来的。
值得一提的是,前文说过,1949年奠基时的点位有些偏北,梁思成等专家在后续设计中,又对位置进行了一次微调,这其中的故事,还有细说的必要。
三、“永垂不朽”:碑题、碑文与刻字的讲究
纪念碑的位置定了,接下来要解决两件极其关键的事:碑上写什么,由谁来写。
在1949年9月30日政协会场上,毛泽东不仅宣读了奠基决议,还当场宣读了未来将镌刻在碑上的那段碑文:
“三年以来,在人民解放战争和人民革命中牺牲的人民英雄们永垂不朽!三十年以来,在人民解放战争和人民革命中牺牲的人民英雄们永垂不朽!由此上溯到一千八百四十年来,从那时起,为了反对内外敌人,争取民族独立和人民自由幸福,在历次斗争中牺牲的人民英雄们永垂不朽!”
三段话,把时间线从最近三年推到近三十年,再上溯到1840年,从鸦片战争说起,将近现代以来一切为民族独立和人民解放而流血牺牲者,都纳入“人民英雄”的范畴。这种时间上的层层递进,既严谨,又有一种极强的历史纵深感。

至于碑题,大家讨论后形成一致意见:由毛泽东亲笔写下“人民英雄永垂不朽”八个大字,作为纪念碑的主题。毛泽东曾写出两幅“人民英雄永垂不朽”,字径只有八九厘米,用的是竖行、从右至左的传统书写形式。
设计组起初动了个“巧”:想从两幅字中,各挑出写得最好的几个字,再重新组合成一幅“完美”碑题。这个设想一说出来,立即引来书法界的反对。书法讲究整体气韵和连贯性,硬把不同作品中的单字拆开拼接,就像把两首曲子的音符混着用,难免失去原有的神采。有书法家直言,如果这么做,“气势就断了”。
究竟最后是选定其中一整幅,还是经过适度调整而成,因当年档案不尽齐备,后人说法不一。不过可以肯定的是,碑上的题字确系毛泽东手书,整体风格与他其他时期的行书作品一致,刚劲中有舒展,气势连贯。
与碑题相比,碑文题写则是另外一番讲究。北京市委负责人彭真提出,碑文应由周恩来手书。理由很简单:周恩来的字一向端正工整,尤其是他写的颜体,更是准确稳健,适合大面积刻石使用。这一建议很快得到中央认可。
那几年,周恩来每天处理繁重政务,昼夜几乎连轴转。即便如此,他还是按照自己的习惯,把写碑文当作一件必须亲自完成、而且要做到十分妥帖的大事。早晨起身后,他常常先坐到书桌边,拿起毛笔,一笔一画练写那150个字。
据当时参与者回忆,周恩来前后写了四十多幅碑文稿,一遍不满意就重来,有时只因为某个字略显拘谨,也宁可整篇推翻。有一天,他拿着自己选出的几幅,去征求雕塑家刘开渠的意见。周恩来问得很直接:“这些字行不行?”刘开渠看后十分认真地回答:“从前只见总理偶题数语,还没看到您这样整幅的作品,不得不说,这些字非常工整。”
经过反复比较,在刘开渠建议下,最终从周恩来的作品中选出一幅整体最为满意的,作为刻碑底稿。
字写好,还得刻到石上,这就涉及一连串技术问题。

毛泽东的题字原稿写在信笺上,字如核桃大小。要刻到高大的碑身上,必须成倍放大。总参谋部测绘局1205工厂负责放大工作,技术人员先对原字进行拍照,再放大到每字高过一个成年人。放大后的字边缘难免有毛刺,为保证与原笔迹完全一致,刘开渠又拿起毛笔,对着放大的线条逐字描润,使线条圆润、转折清晰,然后才交由石工照样雕刻。
为了让碑上文字经久不坏,纪念碑兴建委员会多次讨论,最终决定采用镏金工艺与砂喷刻字相结合的方式。雕刻家魏长青负责具体操作,他先用胶皮覆盖碑面,在需要刻字的部分挖出胶皮,露出石面,形成“阴文”的字模,然后用高压矿砂喷打,逐层蚀出笔画的深度和形状。
毛泽东题写的“人民英雄永垂不朽”,采用“阴文尖底”,笔画线条更显锋利;周恩来的碑文则为“阴文圆底”,显得稳重浑厚。两种不同处理方式,既统一又有区分。每一个字都要经过无数次检查,确认笔画粗细、转折角度没有误差,才允许定稿。
此后,为防止自然风化与环境影响,纪念碑上的镏金字会定期修缮和重新描金,保证碑面始终保持庄严清晰的状态。
四、“坐南朝北”:梁思成林徽因与纪念碑形制的定型
纪念碑的外观形制,并非一开始就清晰成型,而是在数年讨论与修改中逐渐明确的。
1949年10月,北京市都市计划委员会着手邀请专家参与设计,梁思成、林徽因、刘开渠等人被请入这个团队。建一座代表全国人民英雄的纪念碑,既要兼顾中华传统,又不能与现代首都格局脱节,这对设计者来说,是一个既光荣又压力极大的任务。

都市计划委员会面向全国征集方案,从1949年至1951年,两年不到,就收到了180多份建议图纸。有的主张做成长条形平铺纪念墙,有的主张建成高耸塔状建筑,还有设计把碑身做成中空结构,甚至有主张用大型群雕取代传统意义上的“碑”。
讨论过程中,平铺式方案很快被否决,因为不容易在广阔的广场空间中形成视觉中心。雕像与群雕的设想也引起争论。很多雕塑家出于专业偏好,希望通过具体形象表达革命英雄形象,认为群众更容易理解。但林徽因对此有很清醒的判断,她说:“任何雕像和群雕,都不可能和毛主席亲题的‘人民英雄永垂不朽’以及周总理亲题的碑文相比。”她的意思很直接:与其用具体形象去局限想象,不如用高度概括的文字,让每一个瞻仰者在碑前自行回想那些不具姓名的英雄。
这种观点,最后占了上风。讨论逐步收束到“以传统碑的形式为主”的方向上,同时吸收现代建筑的一些比例和结构处理,使纪念碑不显沉闷。
1951年,设计人员从众多方案中筛出三个代表性方案,并按比例制作模型,摆放在天安门广场奠基处。毛泽东批示:让人民来选择。于是当年国庆期间,三座模型在广场接受全国各地群众的“检阅”,各界人士可以近距离观察,对纪念碑未来形态提出意见。这在当时,是一种颇为新鲜的做法。
那段时间,梁思成因病卧床,但仍注意着这件事。他认真看过三套方案后,感到仍有不少问题,便写信给北京市市长彭真。在信中,他指出现有方案在比例、空间处理上仍不够理想,纪念碑的台基应该更为宽大,与地面形成起伏关系,让群众能步上台基献花、瞻仰。他在信里说,自己“对英雄们无限崇敬”,所以“汗流浃背,战战兢兢”,生怕有一丝考虑不周。
经过反复研究,最终确定的方案,以梁思成、林徽因的设想为主要依据,并吸收了之前三种模型中的合理元素。纪念碑高度必须控制在天安门与正阳门之间的适当范围:不能低于天安门城楼三十四点七米的高度,也不能高过正阳门城楼四十二点九六米这一“上限”,以免出现主次颠倒。梁思成在设计中将纪念碑高度定为四十点五米,实际施工时,经过结构与施工条件的调整,最后成品为三十七点九四米,落在两座城楼高度之间,视觉上十分协调。
在碑身比例上,他借鉴西方古典柱式的处理方法,在碑身约三分之一高度处略作“收分”,也就是向内略收一线,使整体更有挺拔感。碑身长度定为十四点四米,上宽二点四八米,下宽二点七二米,为题字预留出足够的“呼吸空间”。
按中国传统建筑习惯,重大建筑一般“坐北朝南”。人民英雄纪念碑在最初设计时,也遵循这一惯例。然而,1954年某次庆典活动,毛泽东、周恩来登上天安门城楼,俯瞰施工中的广场,周恩来突然提出:如果纪念碑面朝南,站在长安街一侧的群众,第一眼看到的是碑背;如果把碑转过来,让正面朝北,人们进入广场时,就能正面看到毛泽东题写的“人民英雄永垂不朽”。

这番话,实际上从群众视角出发考虑观感。经过现场比对和短暂讨论,建设者很快做出修改,将纪念碑整体朝向旋转了一百八十度。就这样,人民英雄纪念碑成为中国大型建筑中极少见的“坐南朝北”的例外。
在空间位置上,还有一处不易察觉却极为重要的调整。设计组在现场放线时发现,按奠基时的点位施工,纪念碑与天安门、国旗杆之间距离偏近,会让广场显得拥挤,缺乏应有的开阔感。梁思成为此再三斟酌,向彭真提出:是否可以将纪念碑整体略向南挪动,以拉开空间关系。彭真的回答颇具信任意味:“主席工作那么忙,你们设计上认为需要挪,就好好算清楚,照方案办。”
经过精确测量和多次讨论,城市规划部门最终确定纪念碑的新位置——大致在东绒线胡同东口与广场中轴线交会处。这个位置,恰与周恩来当初选定的“天安门与中华门之间轴线中点”高度契合。也就是说,奠基石虽然略靠北,但最终纪念碑落成位置,回到了最初设想的轴心上。
纪念碑建设中,还有一段颇为惊心的工程。1953年10月13日上午,一列专列缓缓驶进北京前门西车站,车上载着从外地运来的整块碑心石。朱德亲自到车站迎接。工人们从前门到天安门广场一路铺设钢管滚道,采用滚动法一点一点将重达数十吨的巨石运进工地,过程耗费了极大心力。
1955年3月7日,梁思成、林徽因、茅以升、刘开渠等百余名专家齐聚天安门广场,准备见证碑心石的吊装。随着施工负责人陈志德一声哨响,吊车缓缓将碑心石吊起。现场鸦雀无声,上百双眼睛紧紧盯着那块巨石的每一寸移动。时间仿佛被拉长,当碑心石严丝合缝地落入石槽,没有出现哪怕半分偏差时,锣鼓声与掌声同时响起。陈志德长舒一口气,激动得眼圈泛红,这种紧绷许久后突然放松的情绪,旁人都看在眼里。
五、从奠基到落成:一座“九年磨一碑”的国家记忆
人民英雄纪念碑,从1949年9月30日奠基,到1952年8月1日正式全面动工,再到1958年4月22日竣工,整整走过了九年。对一个普通建筑项目而言,这样的周期显得漫长;但对一座要“代表一个时代”的纪念碑来说,这段时间里做的每一次讨论、每一次更改,都算不上多余。

1958年4月22日,建设工程全部完成,各项检查逐一通过。离真正将它呈现在全国人民面前,还差最后一步——举行落成揭幕仪式。
5月1日,劳动节这天,天安门广场人头攒动。无数群众在广场上集结,目光集中在广场中央那座巍峨的新碑上。纪念碑北面,就是每天冉冉升起的国旗;南面,未来的毛泽东纪念堂尚未修建,但中轴线的格局已隐隐成形;东西两侧,人民大会堂和中国革命历史博物馆的建设,将在接下来的几年里陆续展开。
揭幕那一刻,人群安静下来。随着覆盖在碑身上的幕布缓缓落下,“人民英雄永垂不朽”八个金色大字,在阳光下格外醒目。群众随后沿着台阶走上纪念碑基座,近距离观看碑身四周的花岗岩浮雕,以及那块刻着毛泽东碑文、周恩来手书的巨大碑心石。
后来,人们往往会用一个简洁的时间轴来概括这段历程:1949年9月30日奠基,1952年8月1日正式开工,1958年4月22日竣工,5月1日揭幕。1961年3月4日,人民英雄纪念碑被列入第一批全国重点文物保护单位。单看这些数字,似乎只是冷冰冰的日期排列;但在这些日期背后,是一代又一代建设者与决策者付出的巨大心力。
毛泽东亲自铲下的那一锹土,周恩来一句“位置定下了吗”的追问,梁思成“汗流浃背”的设计信,林徽因对碑形与雕像之争的态度,朱德在前门车站迎接碑心石的身影,还有无数没有留下名字的工程技术人员和普通工人,共同构成了这座纪念碑不为人熟知的一面。
如今,站在天安门广场中轴线向南望去,可以清楚看到纪念碑与天安门城楼、正阳门保持着既紧密又有余地的空间关系。纪念碑挺立在广场中央,既不像城楼那样厚重,也不似塔式建筑那般尖峭,而是一种平衡、沉稳的形态。碑身上的字,依旧清晰可辨,镏金经过多次修缮,仍然熠熠生辉。
纪念碑本身没有声音,却在简洁的碑文和八个大字中,把一个世纪以来的流血与抗争凝成静默。对很多在广场上驻足的人来说,抬头望向碑身时,脑海里闪过的不只是几个熟悉的名字,而是无数没有写在史书上的背影。
从1949年的奠基到1958年的落成,这座碑经历了选址、设计、修改、搬运、吊装等一系列考验。也正是因为这九年间反复的掂量与斟酌,使它最终不只是广场中央的一块石碑,而成为新中国记忆结构中的一个核心坐标。