在城市发展的浪潮中,人们对于居住空间的需求也在不断演变。不仅仅是遮风避雨的场所,更是承载生活品质、体现个人价值的载体。今天,我们将目光投向位于龙华工业区与笋岗路交汇处的檀悦府,试图从建筑本身出发,解读其所蕴含的生活理念。
一、开发商背景与项目概况
檀悦府由一家在深圳深耕多年的房地产开发企业打造。这家企业以稳健的开发风格和对品质的执着追求而闻名。他们致力于打造符合现代人居需求的高品质住宅,在建筑设计、园林景观、物业服务等方面都力求精益求精。檀悦府作为该企业在深圳的又一力作,从立项之初就备受关注。项目占地面积约1.6万平方米,建筑面积约19万平方米,容积率高达8.3,绿化率40%。整个小区由5栋高层建筑组成,总户数610户。物业公司为中晟(深圳)物业服务有限公司,物业费为5.38元/平方米/月。项目提供1290个停车位,缓解了城市停车难题。楼栋结构复杂,包括办公、住宅、幼儿园和保障房,其中1栋为办公,共33层;2栋和3栋为住宅,共47层;4栋为保障房住宅,共32层;5栋为回迁房住宅,共46层;2栋幼儿园共4层。

二、户型解析:多元选择,满足不同需求
檀悦府提供了多种户型选择,以满足不同家庭结构和生活方式的需求。目前在售的户型主要有三种:
四房两厅两卫(约116平方米): 这种户型是改善型家庭的首选。116平方米的空间被合理分割,拥有四个卧室,保证了家庭成员的私密性。宽敞的客厅和餐厅相连,形成一个开放式的公共空间,方便家人互动交流。两个卫生间的设计,也避免了早晚高峰期的拥挤。从户型图来看,该户型方正实用,动静分区明显,采光通风良好。主卧配备独立卫生间,提升了居住舒适度。

三房两厅一卫(约81平方米): 这种户型适合首次置业的年轻家庭或单身贵族。81平方米的空间虽然不大,但经过精心设计,也能够满足基本的生活需求。三个卧室可以根据实际情况进行灵活使用,例如将其中一间改造成书房或衣帽间。客厅和餐厅一体化设计,节省了空间,也增加了空间的通透感。一个卫生间的设计,虽然略显紧凑,但也足够满足日常使用。

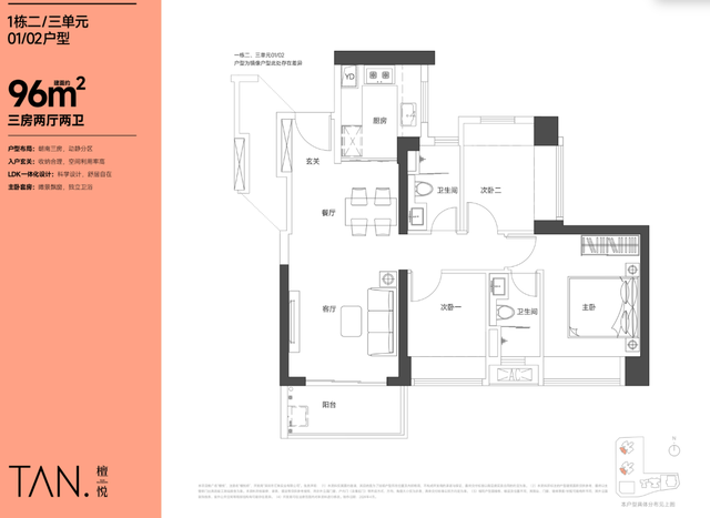
三房两厅两卫(约95/96平方米): 这种户型是介于两者之间的选择,既能满足三口之家的居住需求,又不会造成过大的经济压力。95/96平方米的空间,拥有三个卧室、两个卫生间,以及宽敞的客厅和餐厅。这种户型在功能性和舒适性之间取得了较好的平衡。从户型图来看,该户型也注重动静分区,主卧配备独立卫生间,提升了居住品质。


在选择户型时,购房者可以根据自身的实际情况和需求进行综合考虑。例如,如果家庭成员较多,或者需要更多的私密空间,那么四房两厅两卫的户型可能更适合;如果预算有限,或者对空间需求不高,那么三房两厅一卫的户型也是一个不错的选择。

三、建筑设计与景观营造
檀悦府的建筑设计现代简约,线条流畅,外立面采用高档石材和玻璃幕墙相结合,营造出一种时尚大气的感觉。高耸的楼体,也成为了城市天际线的一部分。
在景观营造方面,檀悦府注重打造一个舒适宜人的居住环境。小区内部规划了绿化景观带,种植了各种乔木、灌木和花卉,形成一个绿意盎然的生态空间。同时,小区还配备了儿童游乐区、健身区等公共设施,为居民提供了休闲娱乐的场所。

檀悦府作为龙华工业区与笋岗路交汇处的一个高品质住宅项目,凭借其优越的地理位置、多元化的户型选择、现代简约的建筑设计和舒适宜人的景观营造,吸引了众多购房者的目光。当然,任何一个项目都有其自身的优缺点,购房者在做出决策之前,需要进行充分的了解和评估,结合自身的实际情况和需求,做出最适合自己的选择。
注:本文仅供参考。具体信息请以官方发布为准。