建设位置:
规划范围位于天河区南部,中央商务区与环五山创新策源区的交汇处,西侧紧邻珠江新城,东侧毗邻暨南大学,南至黄埔大道,北至中山大道。

申请调整内容:
1、路网调整:
本次规划顺应现状村落肌理,规划范围支路由“两横一纵”调整为“三横两纵”,道路宽度由20米调整为15米。道路面积由10.02公顷增加至10.79公顷,道路网密度由8.34km/km2增加至9.89km/km2。

2、用地布局及规划指标调整:
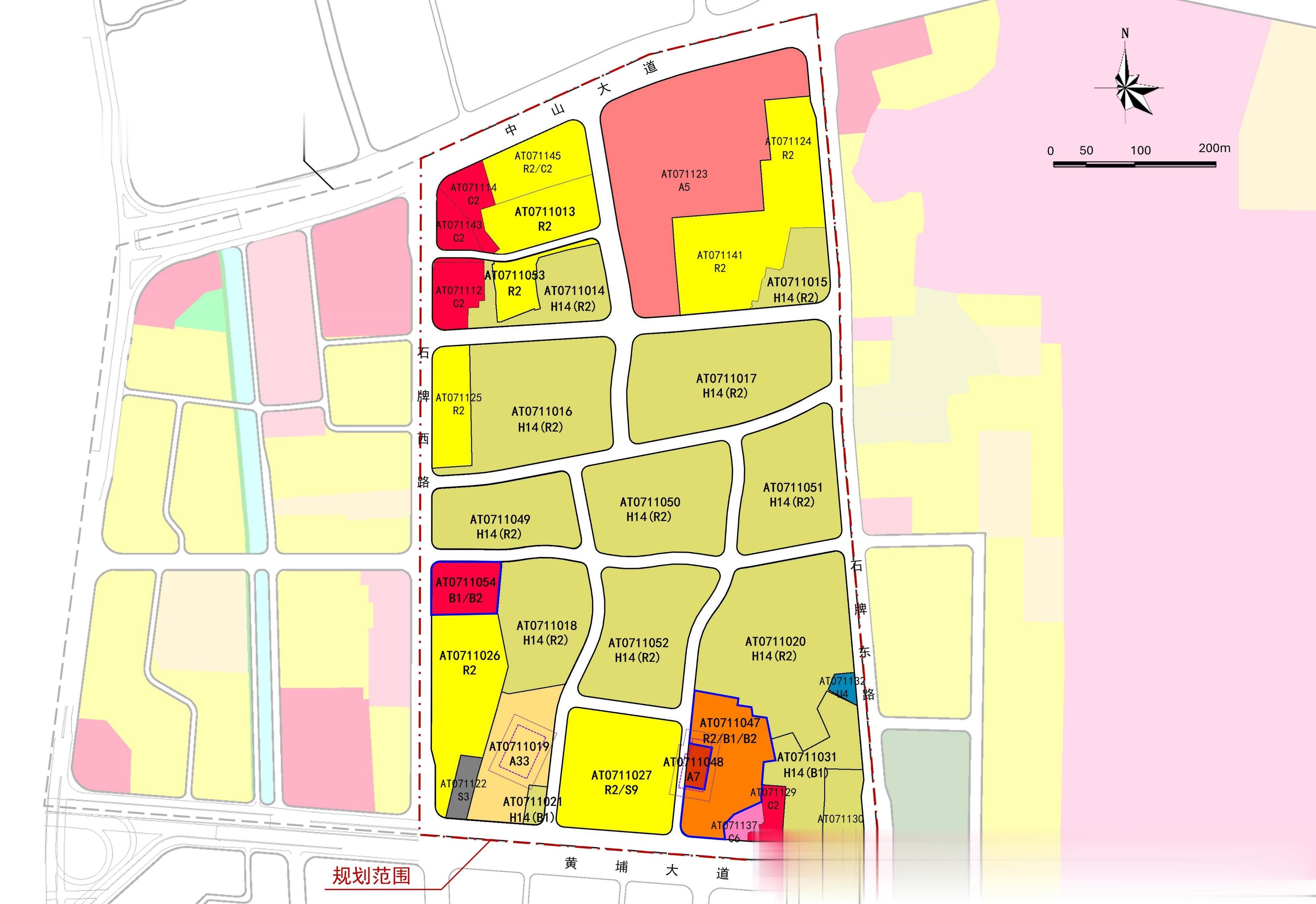
规划范围内新增商住混合用地、商业商务用地以及文物古迹用地,根据实际情况调整一处学校地块边界,调整后总建设量为197.02万m2,相比现行控规建设量增加3.87万m2。
①AT0711047地块:由村生活用地调整为二类居住用地兼容商业商务用地,用地面积13638m2,计容建筑面积88647m2(其中,居住建筑面积65800m2,商业商务建筑面积17167m2,公共服务设施面积5680m2),容积率<6.5,建筑密度<45%,绿地率≥25%,建筑限高150米。
②AT0711048地块:由村生活用地调整为文物古迹用地,用地面积1407m2。根据文物保护相关要求落实临时保护范围(以建筑本体为界向外延伸5米)和临时建设控制地带(以临时保护范围线为界向外延伸10米)。
③AT0711054地块:由二类居住用地调整为商业商务用地,用地面积5431m2,计容建筑面积21180m2(其中公共服务设施面积1560m2),容积率<3.9,建筑密度<50%,绿地率>25%,建筑限高130米。
④AT0711019地块:为中小学用地,用地面积12662m2,容积率>0.7,绿地率>35%。
⑤结合道路调整相应同步修正沿线地块边界。

3、公服设施优化:AT0711047地块配建16处公共服务设施,含1处社区嵌入式服务综合体,1处社区颐康服务站,1处社区卫生服务站,以及其他社区公服设施;AT0711054地块配建5处公共服务设施,含1处小型消防站,以及其他社区公服设施。两个地块新增公服设施总建筑面积为7240m2。