自建房设计探索与分享
哲东自建房设计 第141期
一、项目基本信息
本次为大家分享一套来自湖北的农村自建房设计方案,宅基地尺寸为面宽10.5米、进深15米,属于农村常见的中等方正地块。
地块整体为东西朝向,北侧紧邻邻居,无法开窗;大门朝东开设,西侧靠山,整体环境安静、视野良好。
结合业主需求,这套房子定位为三代同堂长期居住的实用型别墅,重点满足父母居住、多卧室、晾晒便利、外观简洁耐久等要求。



二、业主设计需求
1. 首层设置两间独立卧室,供父母居住
2. 二层、三层各安排3~4间卧室,并包含一间主卧套房
3. 每层需预留露台,满足日常晾晒需求
4. 保留神位空间,要求进深不小于6米,空间宽敞
5. 外立面风格简洁、造价适中、经久耐看
三、平面布局设计说明
1. 首层设计
入口从东侧进入,内部专门预留6米进深、宽敞明亮的神位区域,满足家庭传统需求。
楼梯采用居中布置,动线合理,方便上下楼。楼梯西侧设置卧室,西侧区域做餐厅、厨房一体化设计,空间通透、使用高效。
由于南侧需要退让公共道路,首层平面呈现梯形布局,不影响使用且保证道路通畅。

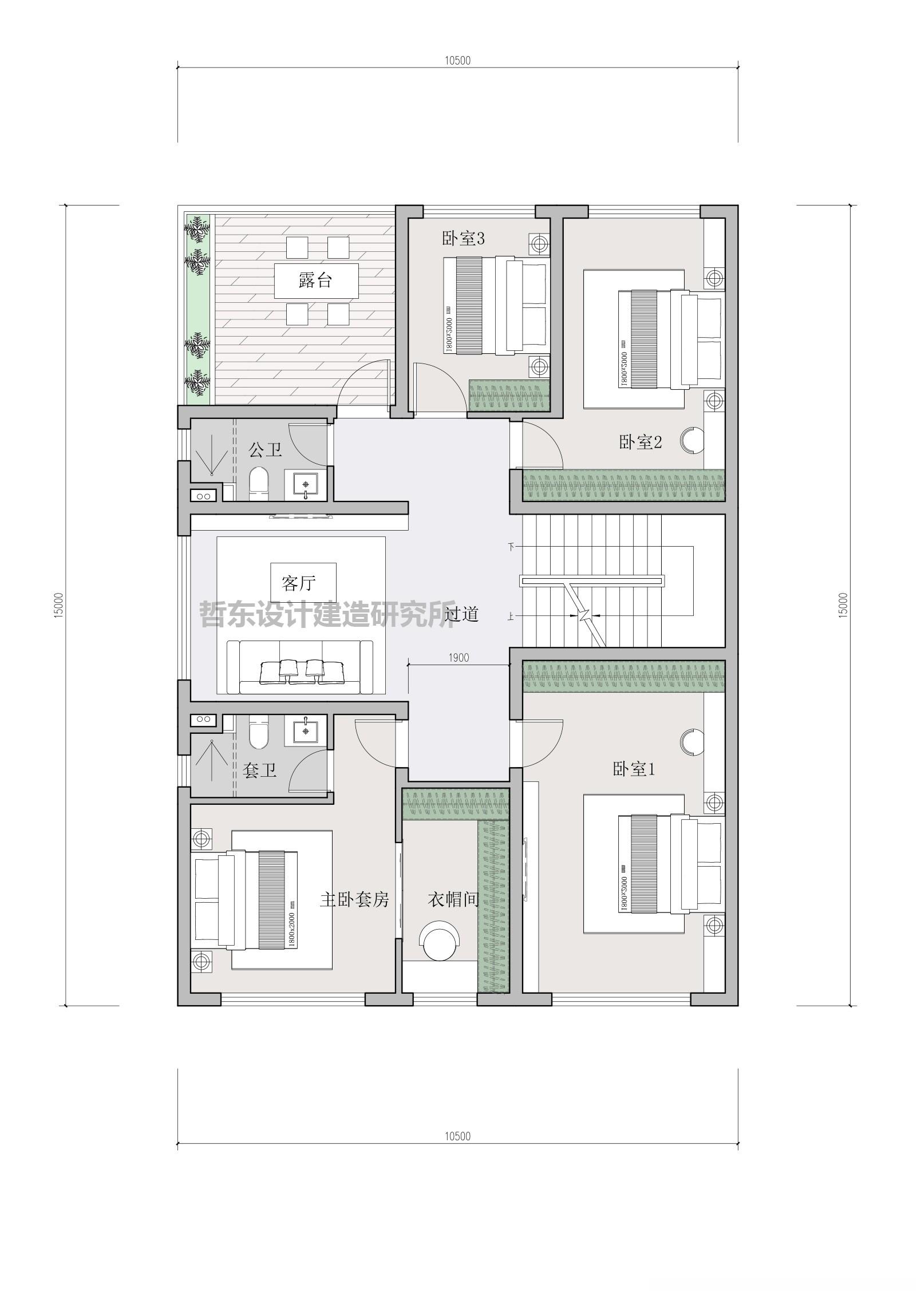
2. 二层设计
二层以上建筑形体可回正设计,空间更加规整。
楼梯上来中间为公共客厅,南侧布置两间卧室;因玄关上方不可设置卫生间,因此将主卧套房安排在客厅上方,保证私密性与使用便利。
北侧设置两间小卧室,厨房上方区域设计为生活露台,与卫生间相邻,洗衣、晾晒动线更短,朝西方向使用也更方便。

3. 三层设计
三层整体布局与二层保持一致,同样配备客厅、多间卧室、主卧套房与生活露台,空间利用率高,可满足家庭成员多、亲友留宿等多种需求。

四、外立面风格设计
外立面采用简洁线条简欧风格,没有复杂造型与多余装饰,整体干净大气。
这种风格造价更低、施工更简单、立面效果耐久,建成后不易过时,适合农村自建房长期居住与传承。



五、方案总结
这套10.5米×15米自建房方案,完美解决了东西朝向、北侧无窗、南侧退让道路等实际问题,同时实现:
• 父母首层双卧室,居住更舒适
• 二三层多卧室+主卧套间,满足大家庭居住
• 生活露台实用方便,晾晒自由
• 外观简约耐看,造价可控
是一套非常适合湖北农村地区的高性价比、高实用性自建房方案。
————————————
本文由哲东自建房设计原创,专注自建房户型规划、外观设计、平面优化,欢迎关注交流。